情報更新日:2025年10月30日/広告有効期限:2025年11月30日
表示閲覧回数(過去30日間):43
お急ぎの方はお電話からお気軽にどうぞ!
098-921-3700 営業時間 / 10:00~18:00 定休日 / 土曜日・日曜日
>物件詳細情報
| 基本情報 | |
|---|---|
| 物件番号 | 10007805016 |
| 店舗形態 | 事務所 |
| オススメ業種 | 事務所 |
| 物件名 | ミルコ那覇前島ビル(302) |
| 物件の状態 | 空き |
| 引越し時期 | 即 |
| 契約形態と期間 |
普通契約期間:2年間 |
| 所在地・交通 | |
|---|---|
| 所在地 | 沖縄県那覇市前島2-12-1 |
| 交 通1 | 那覇バス 徒歩5分 |
| 交 通2 | - |
| 賃料 | |
|---|---|
| 賃 料 | 495,000円(税込) |
| 敷 金 |
2ヶ月 |
| 精算方法 | 実費 |
| 礼 金 | 1ヶ月 |
| その他 | |
|---|---|
| 備考 | |
| 建物 | |
|---|---|
| 建物構造 | 鉄筋コンクリート造 |
| 建物階建て |
地上10階 |
| 施工年月 | 2025(平成37)年 01月 |
| 募集物件の階数 | 地上 3階 302号室 |
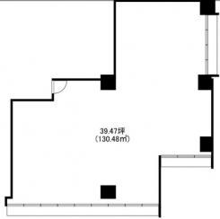
| 契約面積 | 130m2(39.33坪) |
| 用途地域 | 商業地域 |
| 設備 | |
|---|---|
| 水道 | 公営 |
| 下水道 | 公共下水 |
| エレベータ | 有/2基 |
| エアコン | 有 |
| トイレ | 有/共用 |
| 給湯室 | 有/共用 |
| キッチン | 無 |
| 床仕様 | OAフロア |
| セキュリティ | 機械警備 |
| 照明設備 | 有 |
| 駐車場 | |
|---|---|
| 状 況 | 空有 |
| 駐車料金 | 19,800円(税込) |
| 空き台数 | 1台 |
| 取引情報 | |
|---|---|
| 取引態様 | 媒介 |
| 客付 | 不可 |
この物件をチェックした人はこんな物件も見ています
- 嘉手納町エリア貸店舗・事務所!嘉手納高校近く!駐車場3台無料!※飲食店不可。

沖縄県中頭郡嘉手納町-825-1
51.43m2(15.56坪)
132,000円(税込)
- 【飲食店は不可】県庁前駅徒歩約4分の店舗募集中です♪事務所としても使用可能です!店舗の用途としては申込後に相談となります!

沖縄県那覇市久茂地1-8-19
59.40m2(17.97坪)
121,000円(税込)
- 事務所お探しの方必見!新築オフィスビル!セキュリティ(セコム)あり。EV付き物件!機械式駐車場(台数限定)あり。

沖縄県那覇市前島2-12-1
130m2(39.33坪)
583,000円(税込)
- 事務所お探しの方!モノレール美栄橋駅徒歩5分で便利。セキュリティ(セコム)有り!移動楽々のエレベーター付き!機械式駐車場有り。LED照明器具付き。

沖縄県那覇市前島2-12-1
98.18m2(29.70坪)
407,000円(税込)
- 事務所お探しの方!モノレール美栄橋駅徒歩5分で便利。セキュリティ(セコム)有り!移動楽々のエレベーター付き!機械式駐車場有り。LED照明器具付き。

沖縄県那覇市前島2-12-1
130m2(39.33坪)
517,000円(税込)
今日チェックした物件
お急ぎの方はお電話からお気軽にどうぞ!
098-921-3700 営業時間 / 10:00~18:00 定休日 / 土曜日・日曜日


098-921-3700


















098-921-3700