情報更新日:2025年12月11日/広告有効期限:2026年01月31日
表示閲覧回数(過去30日間):35
お急ぎの方はお電話からお気軽にどうぞ!
098-921-3700 営業時間 / 10:00~18:00 定休日 / 土曜日・日曜日
>物件詳細情報
| 基本情報 | |
|---|---|
| 物件番号 | 10007805022 |
| 店舗形態 | 事務所, 店舗 |
| オススメ業種 | 事務所, 物販関係 |
| 物件名 | (仮)那覇上之屋ビル(401) |
| 物件の状態 | 建設中 |
| 引越し時期 | 相談 |
| 契約形態と期間 |
普通契約期間:3年間 |
| 所在地・交通 | |
|---|---|
| 所在地 | 沖縄県那覇市上之屋1-18-15 |
| 交 通1 | 那覇バス 徒歩3分 |
| 交 通2 | - |
| 賃料 | |
|---|---|
| 賃 料 | 559,856円(税込) |
| 敷 金 |
6ヶ月 |
| 共益費・管理費 | 17,495円(税込) |
| 精算方法 | 実費 |
| 礼 金 | 1ヶ月 |
| その他 | |
|---|---|
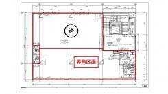
| 備考 | 警備会社:セコム導入予定。駐車場 最大4台契約可(1台16500円)※車種要確認。 家主自主管理物件。エアコンですが、オーナーがテナント専有部分も設置予定。 上之屋の賃料: 16,000円x坪になります。(税抜き) 4階 面積: 31.81坪 賃料: 559,856円 共益費:17,495円 駐車場:2台(16,500円/1台) *飲食は不可になります。 *開館および利用時間は、7:00-20:00(土日祝日、年末は閉扉されます。)その際は、通用口から電気錠で入館できます。 |
| 建物 | |
|---|---|
| 建物構造 | 鉄筋コンクリート造 |
| 建物階建て |
地上4階 |
| 施工年月 | 2025(平成37)年 12月 |
| 募集物件の階数 | 地上 4階 401号室 |
| 契約面積 | 105.16m2(31.81坪) |
| 用途地域 | 近商地域 |
| 設備 | |
|---|---|
| 水道 | 公営 |
| 下水道 | 公共下水 |
| エレベータ | 有 |
| エアコン | 有 |
| 給湯室 | 無 |
| キッチン | 無 |
| ネット環境 | 無 |
| 床仕様 | OAフロア |
| セキュリティ | 機械警備 |
| 利用時間 | 時間制限有 |
| シャッター | 無 |
| 照明設備 | 有 |
| 内装業者指定 | 無 |
| 駐車場 | |
|---|---|
| 状 況 | 空有 |
| 駐車料金 | 16,500円(税込) |
| 空き台数 | 2台 |
| 取引情報 | |
|---|---|
| 取引態様 | 媒介 |
| 客付 | 不可 |
この物件をチェックした人はこんな物件も見ています
- 事務所・店舗で募集!那覇市樋川に事業用でました!駐車場2台駐車可能♪

沖縄県那覇市樋川1-18-48
64.56m2(19.53坪)
198,000円(税込)
- 【飲食店は不可】県庁前駅徒歩約4分の店舗募集中です♪事務所としても使用可能です!店舗の用途としては申込後に相談となります!

沖縄県那覇市久茂地1-8-19
59.40m2(17.97坪)
121,000円(税込)
- 北中城村役場近く!オシャレなオフィステナント空きありお気軽にお問い合わせください。

沖縄県中頭郡北中城村安谷屋-1348-1
56.20m2(17.00坪)
165,000円(税込)
- 前島エリアで飲食相談可の店舗が募集スタート!用途も様々相談可能で、事務所・サロン系もオススメです。美栄橋駅まで徒歩約9分です!※用途が飲食店の場合、敷金は家賃6ヵ月分預りとなります。

沖縄県那覇市前島3-17-12
73.21m2(22.15坪)
176,000円(税込)
- 【事業用】真嘉比の1階事業用物件!駐車場も最大4台可能!美容系・福祉系・教育系など用途相談可☆おもろまち駅からも徒歩10分、周辺にはコンビニ、スーパー等色々ありますよ♪

沖縄県那覇市真嘉比2-29-23
55.73m2(16.86坪)
198,000円(税込)
今日チェックした物件
お急ぎの方はお電話からお気軽にどうぞ!
098-921-3700 営業時間 / 10:00~18:00 定休日 / 土曜日・日曜日


098-921-3700















098-921-3700