情報更新日:2026年02月27日/広告有効期限:2026年03月31日
表示閲覧回数(過去30日間):17
お急ぎの方はお電話からお気軽にどうぞ!
098-921-3700 営業時間 / 10:00~18:00 定休日 / 土曜日・日曜日
>物件詳細情報
| 基本情報 | |
|---|---|
| 物件番号 | 10007805048 |
| 店舗形態 | 店舗(飲食店可), 店舗, 事務所 |
| オススメ業種 | 軽飲食, 物販関係, 事務所 |
| 物件名 | ファミール天久(1F) |
| 物件の状態 | 空き |
| 引越し時期 | 相談 |
| 契約形態と期間 |
定期契約期間:2年間再契約:不可更新手数料:0.50ヶ月 |
| 所在地・交通 | |
|---|---|
| 所在地 | 沖縄県那覇市天久2-2-5 |
| 交 通1 | 琉球バス交通 徒歩2分 |
| 交 通2 | - |
| 賃料 | |
|---|---|
| 賃 料 | 385,000円(税込) |
| 敷 金 |
6ヶ月 |
| 共益費・管理費 | 5,500円(税込) |
| その他月額費用 1 | 環境維持費 2,200円(税込) |
| 精算方法 | 実費 |
| 礼 金 | 1ヶ月 |
| その他 | |
|---|---|
| 備考 | ※焼肉ややきとり・ラーメン等、においやけむりがひどい業種はNG |
| 建物 | |
|---|---|
| 建物構造 | 鉄筋コンクリート造 |
| 建物階建て |
地上4階 |
| 施工年月 | 2005(平成17)年 01月 |
| 募集物件の階数 | 地上 1階 1F号室 |
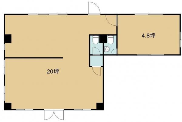
| 契約面積 | 81.98m2(24.80坪) |
| 用途地域 | 1種中高 |
| 設備 | |
|---|---|
| 水道 | 公営 |
| 下水道 | 公共下水 |
| ガス | LPG |
| エレベータ | 無 |
| エアコン | 無 |
| トイレ | 有/専用 |
| 給湯室 | 無 |
| キッチン | 無 |
| ネット環境 | 無 |
| 床仕様 | スケルトン |
| シャッター | 無 |
| 内装業者指定 | 無 |
| 駐車場 | |
|---|---|
| 状 況 | 空有無料 |
| 空き台数 | 3台 |
| 取引情報 | |
|---|---|
| 取引態様 | 代理 |
| 客付 | 不可 |
この物件をチェックした人はこんな物件も見ています
- 北中城村役場近く!オシャレなオフィステナント空きありお気軽にお問い合わせください。

沖縄県中頭郡北中城村安谷屋-1348-1
56.20m2(17.00坪)
165,000円(税込)
- 事務所・店舗で募集!那覇市樋川に事業用でました!駐車場2台駐車可能♪

沖縄県那覇市樋川1-18-48
64.56m2(19.53坪)
198,000円(税込)
- 前島エリアで飲食相談可の店舗が募集スタート!用途も様々相談可能で、事務所・サロン系もオススメです。美栄橋駅まで徒歩約9分です!※用途が飲食店の場合、敷金は家賃6ヵ月分預りとなります。

沖縄県那覇市前島3-17-12
73.21m2(22.15坪)
176,000円(税込)
- 【飲食店相談可】りゅうぼう楽市近く!駐車場3台無料!お問い合わせお待ちしています!

沖縄県那覇市天久2-2-5
81.98m2(24.80坪)
385,000円(税込)
- 【飲食不可】みどり町エリア!広々スペースで使い勝手◎駐車場無料※使用用途に関しては要確認のためお気軽にお問合せください!

沖縄県うるま市みどり町4-5-16
113.40m2(34.30坪)
275,000円(税込)
今日チェックした物件
お急ぎの方はお電話からお気軽にどうぞ!
098-921-3700 営業時間 / 10:00~18:00 定休日 / 土曜日・日曜日


098-921-3700


















098-921-3700