情報更新日:2025年12月29日/広告有効期限:2026年01月31日
表示閲覧回数(過去30日間):50
お急ぎの方はお電話からお気軽にどうぞ!
098-921-3700 営業時間 / 10:00~18:00 定休日 / 土曜日・日曜日
>物件詳細情報
| 基本情報 | |
|---|---|
| 物件番号 | 10007805027 |
| 店舗形態 | 店舗(飲食店可) |
| オススメ業種 | 軽飲食, 重飲食 |
| 物件名 | Ocean front(店舗1) |
| 物件の状態 | 空き |
| 引越し時期 | 相談 |
| 契約形態と期間 |
普通契約期間:1年間11,000円 |
| 所在地・交通 | |
|---|---|
| 所在地 | 沖縄県国頭郡恩納村安富祖-623 |
| 交 通1 | 沖縄バス 徒歩2分 |
| 交 通2 | - |
| 賃料 | |
|---|---|
| 賃 料 | 275,000円(税込) |
| 敷 金 |
4ヶ月 |
| 共益費・管理費 | 5,500円(税込) |
| その他月額費用 1 | 環境維持費 1,100円(税込) |
| 精算方法 | 実費 |
| 礼 金 | 1ヶ月 |
| その他 | |
|---|---|
| 備考 | (注意)1年未満の解約は違約金として家賃1ヶ月分。営業時間制限:朝9:00-夜24:00まで制限。敷地内禁煙。飲食店設備、家具が店舗内ありますが修理・取替の保証なし。(撤去費用のみオーナー負担)・入居時に店舗内にあった残置物・エアコン・冷蔵庫・冷凍庫・ウォシュレット・フライヤー・コンロ(・グラス冷蔵・キッチン換気扇・ビールサーバー・テーブル、イスはすべて残置(保証なし)。※契約期間中に壊れた場合の撤去費用は賃貸人負担。 ・グリストラップ設備あり。メンテナンンス、定期清掃は賃借人負担にて行うものとします。 ・店舗外前面の間接照明、木製仕切り板、外観木材外壁は保証・修理なし。賃借人にてメンテナンスを行うものとします。 ・営業時間制限:朝9:00-夜24:00まで制限。 ・敷地内禁煙。 ・郵便ポストなし(賃借人にて設置) |
| 建物 | |
|---|---|
| 建物構造 | 鉄筋コンクリート造 |
| 建物階建て |
地上5階 |
| 施工年月 | 2015(平成27)年 04月 |
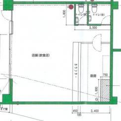
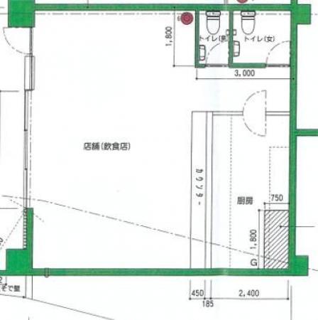
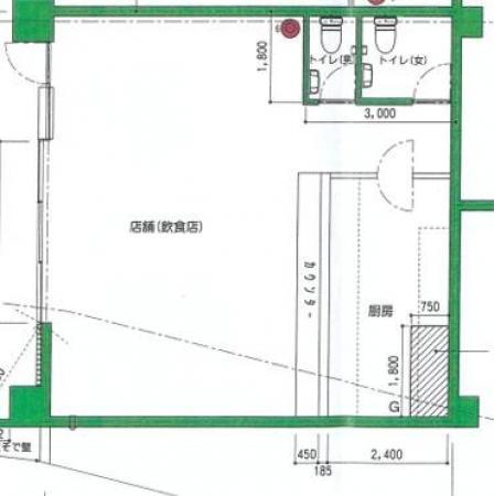
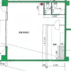
| 募集物件の階数 | 地上 1階 101号室 |
| 契約面積 | 64m2(19.36坪) |
| 用途地域 | 指定無 |
| 設備 | |
|---|---|
| 水道 | 公営 |
| 下水道 | 浄化槽 |
| ガス | LPG |
| エレベータ | 有 |
| エアコン | 無 |
| トイレ | 有/専用 |
| 給湯室 | 無 |
| キッチン | 有/専用 |
| セキュリティ | 無 |
| 利用時間 | 時間制限有 |
| シャッター | 無 |
| 照明設備 | 有 |
| 内装業者指定 | 無 |
| 駐車場 | |
|---|---|
| 状 況 | 空有 |
| 空き台数 | 3台 |
| 取引情報 | |
|---|---|
| 取引態様 | 代理 |
| 客付 | 可 |
この物件をチェックした人はこんな物件も見ています
- 事務所・店舗で募集!那覇市樋川に事業用でました!駐車場2台駐車可能♪

沖縄県那覇市樋川1-18-48
64.56m2(19.53坪)
198,000円(税込)
- 北中城村役場近く!オシャレなオフィステナント空きありお気軽にお問い合わせください。

沖縄県中頭郡北中城村安谷屋-1348-1
56.20m2(17.00坪)
165,000円(税込)
- 新都心エリアに待望の新築ビル。58号線アクセス良好。駐車場完備。天井高3m。事務所仕様でお引き渡し。2025年12月完成予定です。 お気軽にお問合せください。

沖縄県那覇市上之屋1-18-15
105.16m2(31.81坪)
559,856円(税込)
- 新都心エリアに待望の新築ビル。58号線アクセス良好。駐車場完備。天井高3m。事務所仕様でお引き渡し。2025年12月完成予定です。

沖縄県那覇市上之屋1-18-15
190.12m2(57.51坪)
1,012,176円(税込)
- 【飲食店は不可】県庁前駅徒歩約4分の店舗募集中です♪事務所としても使用可能です!店舗の用途としては申込後に相談となります!

沖縄県那覇市久茂地1-8-19
59.40m2(17.97坪)
121,000円(税込)
今日チェックした物件
お急ぎの方はお電話からお気軽にどうぞ!
098-921-3700 営業時間 / 10:00~18:00 定休日 / 土曜日・日曜日


098-921-3700



















098-921-3700